Дома под ключ в Костроме
Отзывы из Яндекс Карт
4.9
94 отзывов
Дополнительные услуги 88%
2 154 оценок
Комплектации 89%
1 535 оценок
Планировки 90%
2 484 оценок
Проекты 93%
2 231 оценок
С
Клара В.01/10/2026 г.
Поставили дом 5,5х8,5 из клеёного бруса, он почти не даёт усадку, сразу можно делать отделку. Дорого, но оно того стоит — нет щелей, не дует, стены идеальные. Компания собрала за 25 дней, я только чаем бригаду поила.
С
Нана Е.02/03/2025 г.
Очень ценю, что компания дала длительную гарантию на все виды работ, это говорит об уверенности в собственном качестве и ответственном отношении к клиентам.
Отзывы из Google Карт
4.8
57 отзывов
Дополнительные услуги 88%
2 154 оценок
Комплектации 89%
1 535 оценок
Планировки 90%
2 484 оценок
Проекты 93%
2 231 оценок
С
Лолита Ю.04/13/2026 г.
Каркасную баню строили осенью. Переживала, как она перезимует. Ничего, стоит, как новенькая, весной только покрыли защитным составом. Говорят, каркасники недолговечны, посмотрим, но пока всё отлично.
С
Стас Пономарев04/08/2025 г.
Огромная благодарность всей команде Брус дома за наш новый каркасный дом. С самого первого дня общения чувствовалась ответственность и искреннее желание помочь. Все этапы строительства были выполнены безупречно, а финальный результат радует глаз и душу. Жить в таком доме — одно сплошное удовольствие.
Отзывы из 2гис
4.9
32 отзывов
Дополнительные услуги 88%
2 154 оценок
Комплектации 89%
1 535 оценок
Планировки 90%
2 484 оценок
Проекты 93%
2 231 оценок
С
Яна05/12/2026 г.
Заказала элитный проект 15х15 с бассейном и панорамным остеклением, вышло дорого, но результат превзошёл ожидания. Правда, в процессе пришлось пару раз ругаться из-за того, что забыли установить вытяжку в сауне.
С
Боря З.03/16/2026 г.
Каркасная баня 5,5х10 с беседкой и печкой-комплектом. Отличное место для шашлыков и пара. Но вот в беседке пол сделали без уклона, вода после дождя стояла лужей — сам потом угол поднял.
С
Степан Е.03/01/2026 г.
Сравнивал цены у троих подрядчиков, «БрусДома» были в золотой середине. Заказал дом 10х14 с сауной внутри и панорамным остеклением. Остекление заказал у них же, зимой не дует, всё герметично. Только розеток в проекте забыли заложить пару штук — сам потом штробил.
С
Хлоя Ширяева06/29/2025 г.
Спасибо за безупречную чистоту на участке после завершения работ — строители убирали за собой ежедневно, поэтому мне не пришлось тратить время на расчистку территории.


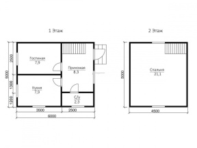
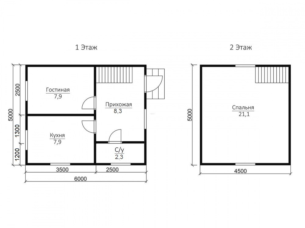
Проект №6 Дом с мансардой 6х5

каркас из строганой доски
Создайте свой план для этого проекта
и отправьте его нам на расчет в один клик.
Каркасный дом (150 мм) 6х5 Толщина утепления 150 мм 1531300 Заказать
Каркасный дом (200 мм) 6х5 Толщина утепления 200 мм 1671300 Заказать

Пользуйтесь нашим планировщиком для того, чтобы адаптировать под себя уже готовые проекты и получить свою персональную планировку.

При помощи планировщика вы можете создать чертежи, схемы, эскизы, планы уникального дома с мансардой, эркером, с нужным количеством комнат. Вы получите проект с планировкой, который полностью отвечает вашим требованиям.

При заказе строительства дома можно выбрать определенный тип крыши: четырехскатная, двускатная и вальмовая. Двухскатная крыша - наиболее популярна у малометражных домов.

Самые востребованные на сегодняшний день размеры домов и коттеджей: мини - до 50 кв. М (в большинстве случаев, 1 этажные); компактные - от 70 до 100 квадратных метров (обычно 2х этажные); большие - начиная от 150 кв. М и больше.

Можем предложить дуплексы - каркасные дома с 2-мя входами на две семьи. Такие дома предполагаются для двух хозяев, они поделены на две половины, каждая половина с отдельным входом.


Наши работы

Перейти в галерею


Комплектация

Длина: 6 м
Ширина: 5 м
Общая площадь: 48.14 м2
Исполнение Под ключ (с отделкой)
Фундамент Свайно-винтовой или ж/б сваи (рассчитываются отдельно).
Гидроизоляция фундамента Рубероид в два слоя.
Основание (обвязка) Из обрезного бруса 150х150 мм. 150х200 мм. согласно выбранной толщине утепления. Торцевая доска строганая 45х145/45х195+/-5 мм. согласно выбранной толщине утепления. Обработка антисептиком.
Цокольное перекрытие Строганая доска камерной сушки 45х145/45х195+/-5 мм. с шагом 590 мм. Обработка антисептиком.
Пол черновой Обрезная доска камерной сушки 20х100 мм.
Влаго-ветрозащита чернового пола Мембрана Ондутис А100.
Внешние стены Стойки каркаса из строганой доски камерной сушки 45х145/45х195+/-5 мм. с шагом 590 мм. Верхняя двойная и нижняя обвязки из строганой доски камерной сушки 45х145/45х195+/-5 мм. Разгрузочный ригель из строганой доски 45х145+/-5 мм. Укосины из строганой доски 20х95 мм.
Перегородки Стойки каркаса из строганой доски камерной сушки 45х95+/-5 мм. с шагом 590 мм. Верхняя двойная и нижняя обвязки из строганой доски 45х95+/-5 мм. Разгрузочный ригель из строганой доски камерной сушки 45х145+/-5 мм. Укосины из строганой доски камерной сушки 20х95 мм.
Сборка каркаса На гвозди.
Высота от пола до потолка Дом одноэтажный: 2,5 м. Дом с мансардой: 1-ый этаж- 2,5 м.
2-ой этаж (мансарда)- 2,3 м.
Дом в полтора и два этажа:
1-ый этаж 2,5 м.
2-ой этаж 2,4 м. в полутораэтажном доме
2,5 м. в двухэтажном доме.
Внешняя отделка стен Имитация бруса камерной сушки, сорт АВ, толщиной 17 мм. Монтаж через строганый брусок камерной сушки 45х45+/-5 мм. (вентилируемый фасад). Влаго-ветрозащитная мембрана- Ондутис А100.
Внутренняя отделка стен, перегородок Евровагонка камерной сушки, сорт АВ, толщиной 12,5 мм. по строганой рейке 20х40+/-5 мм. либо ГКЛ 12,5 мм.
Отделка потолка Евровагонка камерной сушки, сорт АВ толщиной, 12,5 мм. по строганой рейке 20х40+/-5 мм. либо ГКЛ 12,5 мм.
Пол чистовой Шпунтованная доска камерной сушки толщиной 35-36 мм. сорт АВ. по строганой рейке 20х40+/-5 мм. либо шпунтованная ДСП 16 мм. по разряженной обрешётке из строганой доски камерной сушки 20х95+/-5 мм.
Утепление (пол, потолок) Минеральная вата Knauf 150/200 мм. согласно выбранной толщине утепления.
Утепление стен Плитный утеплитель Rockwool, толщиной 150/200 мм. согласно выбранной толщине утепления.
Звукоизоляция перегородок Плитный утеплитель Rockwool, толщиной 100 мм.
Пароизоляция (стены, перегородки, пол, потолок) Плёнка Ондутис R70. Дополнительная герметизация нахлёстов/примыканий пароизоляционной плёнки клейкой лентой Delta.
Окна Двухкамерные стеклопакеты ПВХ белого цвета, профиль 60 мм. В комплекте: отливы, подоконники, москитные сетки.
Двери Входная- металлическая, утеплённая (Россия). Межкомнатные- филёнчатые.
Наличники на окна и двери Наличник деревянный, строганый, камерной сушки 70-90 мм. с двух сторон.
Лестница (при наличии второго этажа) Деревянная, одно или двухмаршевая. Перила- заводские резные, балясины- заводские точеные, устанавливаются стартовые точёные столбы. Ступени 40х200 мм. Тетива лестницы- 90х140 мм.
Крыша Двускатная, ломаная или вальмовая в соответствии с проектом.
Стропильная система Выполнена из строганой доски камерной сушки 45х145/45х195+/-5 мм. Шаг установки стропил 590 мм.
Обрешётка Выполняется из строганой доски камерной сушки толщиной 20х95+/-5 мм. Шаг крепления обрешетки 350 мм. Контробрешётка выполняется из строганого бруска камерной сушки 45х45+/-5 мм. Крепится по стропилам (вентиляционный зазор).
Подкровельная мембрана Ондутис А100
Кровельное покрытие (на выбор) Металлочерепица 0,45 мм. Цвет на выбор.
Фронтоны (при наличии) Каркас из строганой доски камерной сушки 45х145/45х195+/-5 мм. Обшиваются имитацией бруса камерной сушки, сорт АВ, толщиной 17 мм. Монтаж через строганый брусок камерной сушки 45х45+/-5 мм. (вентилируемый фасад). Влаго-ветрозащитная мембрана- Ондутис А100. Монтаж вентиляционных решёток.
Свесы крыши Ширина 400 мм. Подшиваются вагонкой камерной сушки, сорт АВ.
Терраса/балкон (при наличии) Устанавливаются опорные столбы из строганного бруса камерной сушки 140х140 мм.
Отделка потолка террасы/балкона Евровагонка камерной сушки толщиной 12,5 мм. сорт АВ.
Пол террасы/балкона Шпунтованная доска камерной сушки толщиной 35-36 мм. сорт АВ.
Ограждение террасы/балкона Перила- строганая доска. Балясины- точеные, фигурные. Либо ограждение в скандинавском стиле. Устанавливаются ступени у входа.
Допуск на геометрические параметры Составляет +/- 50 мм по длине с каждой стороны.
Допускается стыковка имитации бруса, вагонки и половой доски По всему периметру стен дома (если ширина и длина дома более 6,0 метров). Вагонки и доски пола в каждой отдельной комнате.
Допуски по имитации бруса, вагонке, доске +/- 5 мм.
В стоимость включена Доставка комплекта материала в радиусе 500 км. от г. Пестова Новгородской области и сборка дома на вашем участке.
Гарантия 5 лет.
Бытовка строительная 2,0х3,0 м. каркасно-щитовая. Стоимость 23000 руб. Остаётся на участке Заказчика.
Туалет 1,0х1,0 м. каркасно-щитовой. Стоимость 12000 руб. Остаётся на участке Заказчика.
Генератор Стоимость аренды на весь срок строительства 15000 руб. ГСМ за счёт Заказчика.

Сооружение каркасных домов осуществляется в 2-х вариантах: полностью под ключ и под усадку, когда сруб отстаивается на протяжении некоторого времени.

Зимой специалисты советуют строить дома в морозную погоду, чтобы каркас не промок, в летнюю пору - не под дождем.

Подходящими для сада или дачи являются бюджетные домики на винтовых сваях, в нашем онлайн-каталоге находятся одноэтажные и полуторатажные варианты домов.

Для ПМЖ (постоянного проживания), готовы предложить очень теплые двухэтажные и одноэтажные дома на плитном и ленточном фундаменте.

Мы предлагаем два вида утепления: 150 мм и 200 мм. Каркасные дома с утеплителем 150 миллиметров получаются дешевле, но не такими теплыми.

Дополнительные услуги


Одним из популярных решений загородного дома является проект 6 каркасного полутораэтажного дома с (6х5 м.), общей площадью 48.14 кв.м.. Оптимальный размер предоставляет комфортные условия для семейного отдыха в окружении природы.

Просторная гостиная и уютная кухня имеют конструктивную планировку и открыты для естественного освещения благодаря двойным зимним окнам. Отличительной особенностью проекта является . Дом надежно укрыт от непогоды двускатной, покрытой ондулином заранее выбранной расцветки.

Сооружение имеет высокие показатели в таких характеристиках:

По желанию заказчика компания «Дача из бруса» охотно внесет изменения в первоначальный проект для удовлетворения личных эстетических предпочтений владельца, придавая строению неповторимость и индивидуальность. Закажите строительство каркасного дома в Костроме.


Популярные проекты


Дома из бруса 6х6 Двухэтажные каркасные дома Каркасные дома 9х10
хит продаж
Тип:
Общая площадь: 2
2563300
от 2441300
хит продаж
Тип:
Общая площадь: 2
3550300
от 3381300
хит продаж
Тип:
Общая площадь: 2
3109300
от 2961300
Дома из бруса

Заказать или задать вопрос



Заказать или задать вопрос

Заказать звонок