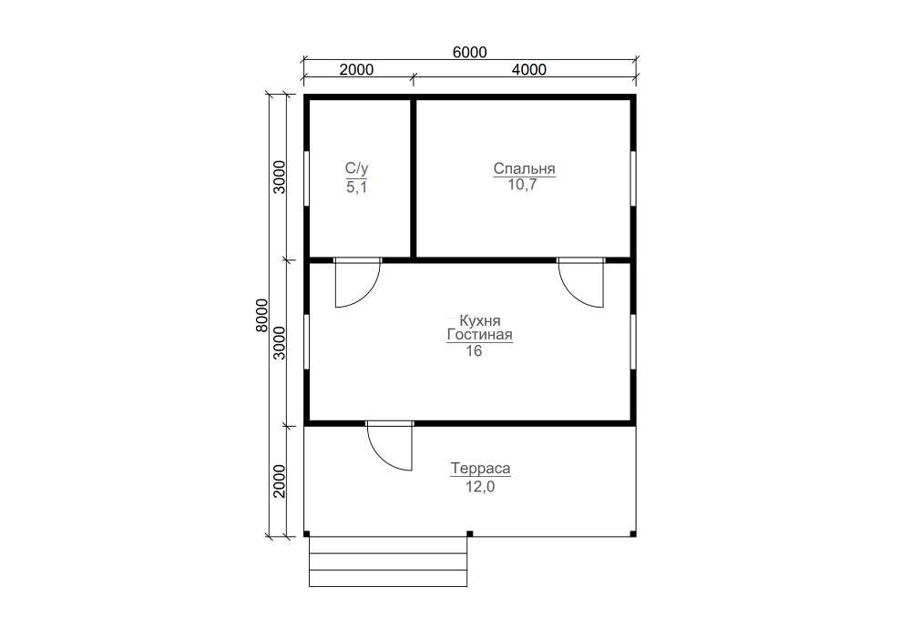
Проект №84 Дом 8х6

брус камерной сушки
Под ключ (с отделкой) 6х8 Профилированный 140х140 мм 1301300 Заказать
Под ключ (с отделкой) 6х8 Профилированный 190х140 мм 1441300 Заказать
Под усадку (без отделки) 6х8 Cруб дома 140х140 мм 971300 Заказать
Под усадку (без отделки) 6х8 Cруб дома 190х140 мм 1101300 Заказать


Комплектация

Площадь застройки: 48 м2
Длина: 8 м
Ширина: 6 м
Общая площадь: 32.8 м2
Под ключ (с отделкой) Под усадку (без отделки)
Фундамент Свайно-винтовой или ж/б сваи (рассчитываются отдельно).
Гидроизоляция фундамента Рубероид в два слоя.
Основание (обвязка) Из обрезного бруса (100х150 мм. 150х150 мм. 150х200 мм. согласно выбранному сечению бруса). Обработка антисептиком.
Количество рядов основания 2 2
Цокольное перекрытие Обрезной брус камерной сушки 100х150/50х200 мм. с шагом 600 мм. Обработка антисептиком. Обрезной брус естественной влажности 100х150/50х200 мм. с шагом 600 мм. Обработка антисептиком.
Пол черновой Обрезная доска камерной сушки 20х100 мм. Обрезная доска естественной влажности 20х100 мм.
Внешние стены Профилированный брус камерной сушки, сечением 90х140/140х140/190х140 мм. по выбранной комплектации. Два вида профиля: 
1. С двух сторон, прямой со снятой фаской. 2. Снаружи под «блок- хаус», внутри прямой.
Высота сруба: Сруб одноэтажный- 18 венцов
Сруб с мансардой- 18 венцов
Сруб в 1,5 этажа- 18 венцов, далее каркас с внешней отделкой имитацией бруса.
Сруб в 2 этажа- 37 венцов
Профилированный брус естественной влажности, сечением 90х140/140х140/190х140 мм. по выбранной комплектации. Два вида профиля: 
1. С двух сторон, прямой со снятой фаской. 2. Снаружи под «блок- хаус», внутри прямой.
Высота сруба: Сруб одноэтажный- 18 венцов
Сруб с мансардой- 18 венцов
Сруб в 1,5 этажа- 18 венцов, далее каркас с внешней отделкой имитацией бруса.
Сруб в 2 этажа- 37 венцов
Межвенцовый утеплитель Джут (льноджутовое полотно). Джут (льноджутовое полотно).
Перегородки 1-го этажа Профилированный брус камерной сушки, сечением 90х140 мм. Профилированный брус естественной влажности, сечением 90х140 мм.
Перегородки 2-го этажа Каркасные: доска камерной сушки 40х100 мм, обшитые евровагонкой хвойных пород, камерной сушки, толщиной 12,5 мм. сорт «АВ» (дома с мансардой и в 1,5 этажа). Брусовые: профилированный брус камерной сушки, сечением 90х140 мм. (дома двухэтажные). Каркасные: доска естественной влажности 40х100 мм. (дома с мансардой и в 1,5 этажа). Брусовые: профилированный брус естественной влажности, сечением 90х140 мм. (дома двухэтажные).
Сборка сруба Берёзовый нагель. Берёзовый нагель.
Соединение углов сруба «Тёплый угол» (коренной шип). «Тёплый угол» (коренной шип).
Высота от пола до потолка Сруб одноэтажный: 2,4 м. (18 венцов) Сруб с мансардой: 1-ый этаж- 2,4 м. (18 венцов)
2-ой этаж (мансарда)- 2,3 м.
Сруб в полтора и два этажа:
1-ый этаж 2,4 м ±4 см. (18 венцов)
2-ой этаж 2,4 м ±4 см. каркасные аттиковые стены (боковые) высотой 1,5 м. в полутораэтажном доме
2,4 м ±4 см (поднят брусом на 18 венцов) в двухэтажном доме.
Сруб одноэтажный: 2,5 м. (18 венцов) Сруб с мансардой: 1-ый этаж- 2,5 м. (18 венцов)
2-ой этаж (мансарда)- 2,4 м.
Сруб в полтора и два этажа:
1-ый этаж 2,5 м ±4 см. (18 венцов)
2-ой этаж 2,5 м ±4 см. каркасные аттиковые стены (боковые) высотой 1,5 м. в полутораэтажном доме
2,5 м ±4 см (поднят брусом на 18 венцов) в двухэтажном доме.
Утепление (пол, потолок, мансарда) Минеральная вата Knauf 150 мм. Отсутствует.
Пароизоляция (пол, потолок, мансарда) Ондутис R70. Отсутствует.
Пол чистовой Шпунтованная доска камерной сушки толщиной 36 мм. сорт АВ. по рейке 20х40 мм. либо шпунтованная ДСП 16 мм. по разряженной обрешётке из обрезной доски камерной сушки 20х100 мм. Отсутствует.
Потолки Евровагонка камерной сушки толщиной 12,5 мм. сорт АВ. Отсутствует.
Окна Деревянные, двойного остекления. Отсутствуют.
Двери Входная- металлическая, утеплённая (Россия). Межкомнатные- филёнчатые. Отсутствуют.
Наличники на окна и двери Наличник деревянный, строганый, камерной сушки 70-90 мм. Отсутствует.
Шиповка оконных и дверных проёмов (ройки) Да. Отсутствует.
Лестница (при наличии второго этажа) Деревянная, одно или двухмаршевая. Перила- заводские резные, балясины- заводские точеные, устанавливаются стартовые точёные столбы. Ступени 40х200 мм. Тетива лестницы- 90х140 мм. Отсутствует.
Крыша Двускатная, ломаная или вальмовая в соответствии с проектом. Двускатная, ломаная или вальмовая в соответствии с проектом.
Стропильная система Выполнена из обрезной доски камерной сушки 40х150 мм. Шаг установки стропильных ног 600 мм. Выполнена из обрезной доски естественной влажности 40х150 мм. Шаг установки стропильных ног 600 мм.
Обрешётка Выполняется из обрезной доски камерной сушки толщиной 20-22 мм. Шаг крепления обрешетки 300 мм. Контробрешётка выполняется из бруска камерной сушки 40х50 мм. Крепится по стропильным ногам (вентиляционный зазор). Выполняется из обрезной доски естественной влажности толщиной 20-22 мм. Шаг крепления обрешетки 300 мм. Контробрешётка выполняется из бруска естественной влажности 40х50 мм. Крепится по стропильным ногам (вентиляционный зазор).
Подкровельная мембрана Ондутис А100 Ондутис А100
Кровельное покрытие (на выбор) Ондулин, Черепица Ондулин. Ондулин, Черепица Ондулин.
Фронтоны (при наличии) Каркас из обрезной доски камерной сушки 40х150 мм. Обшиваются вагонкой камерной сушки толщиной 16 мм. сорт АВ по контррейке 20х40 мм. (вентиляционный зазор). Влаго-ветрозащита Ондутис А100. Монтаж вентиляционных решёток. Каркас из обрезной доски естественной влажности 40х150 мм. Обшиваются вагонкой камерной сушки толщиной 16 мм. сорт АВ по контррейке 20х40 мм. (вентиляционный зазор). Влаго-ветрозащита Ондутис А100. Монтаж вентиляционных решёток.
Свесы крыши Ширина 400 мм. Подшиваются вагонкой камерной сушки, сорт АВ. Ширина 400 мм. Подшиваются вагонкой камерной сушки, сорт АВ.
Терраса/балкон (при наличии) Устанавливаются опорные столбы из строганного бруса камерной сушки 140х140 мм. с компенсационными болтами под усадку. Устанавливаются опорные столбы из строганного бруса естественной влажности 140х140 мм. с компенсационными болтами под усадку.
Отделка потолка террасы/балкона Евровагонка камерной сушки толщиной 12,5 мм. сорт АВ. Отсутствует.
Пол террасы/балкона Шпунтованная доска камерной сушки толщиной 36 мм. сорт АВ. Отсутствует.
Ограждение террасы/балкона Перила- строганая доска. Балясины- точеные, фигурные. Либо ограждение в скандинавском стиле. Устанавливаются ступени у входа. Отсутствует.
Допуск на геометрические параметры сруба Составляет +/- 50 мм по длине с каждой стороны. Составляет +/- 50 мм по длине с каждой стороны.
Допускается стыковка бруса, вагонки и половой доски По всему периметру стен дома (если ширина и длина дома более 6,0 метров). Вагонки и доски пола в каждой отдельной комнате. По всему периметру стен дома (если ширина и длина дома более 6,0 метров).
Допуски по брусу, доске +/- 5 мм. +/- 5 мм.
В стоимость включена Доставка комплекта материала в радиусе 500 км. от г. Пестова Новгородской области и сборка дома на вашем участке. Доставка комплекта материала в радиусе 500 км. от г. Пестова Новгородской области и сборка дома на вашем участке.
Гарантия 5 лет. 2 года.
Бытовка строительная 2,0х3,0 м. каркасно-щитовая. Стоимость 23000 руб. Остаётся на участке Заказчика. Стоимость 23000 руб. Остаётся на участке Заказчика.
Туалет 1,0х1,0 м. каркасно-щитовой. Стоимость 12000 руб. Остаётся на участке Заказчика. Стоимость 12000 руб. Остаётся на участке Заказчика.
Генератор Стоимость аренды на весь срок строительства 10000 руб. ГСМ за счёт Заказчика. Стоимость аренды на весь срок строительства 10000 руб. ГСМ за счёт Заказчика.

Сооружение дома может осуществляться в нескольких вариантах: полностью под ключ и под усадку, когда сруб отстаивается определенное время.

Зимой эксперты рекомендуют строить дом из зимнего леса, в летнюю пору - из дерева камерной сушки.

Максимально подходящими для дачи или сада являются бюджетные домики на винтовых сваях, на нашем сайте находятся одноэтажные и полуторатажные дома.

Для постоянного проживания, рекомендуем надежные и теплые одноэтажные и двухэтажные дома на плитных и ленточных фундаментах.

Мы можем предложить несколько размеров профбруса: 190х140 мм и 140х140 мм. Дома из вертикального бруса строим с использованием бруса 140х190 мм.

Дополнительные услуги


Проект одноэтажного дома из бруса с большой террасой – оптимальный вариант для загородного проживания. Сдержанные архитектурные элементы и четкие контурные линии в проекте 84 расширяют функциональность дома и придают постройке респектабельный вид.

Во внутренней планировке присутствуют все помещения, удовлетворяющие запросы среднестатистической семьи. Равномерное расположение зимних окон с двойным остеклением обеспечивает проникновение дневного света и нормализует воздухообмен в помещениях.

Ансамбль дома завершается двускатной крышей. Покрытие выполнено из ондулина одного из трех цветов на усмотрение заказчика: зеленый, красный или коричневый.

Продуманная планировка внутреннего пространства, просторность и естественная освещенность комнат, натуральное дерево – факторы эксплуатационной надежности и максимального комфорта. Общая площадь дома составляет 32.8 кв.м., а размер – 6х8 м..

Закажите строительство дома в Костроме по проекту, разработанному компанией «Дача из бруса». 


Популярные проекты

хит продаж брус камерной сушки
Тип:
Общая площадь: 107.62
1502800
от 1431300
хит продаж брус камерной сушки
Тип: с балконом, с маленькой террасой
Общая площадь: 63.12
1334800
от 1271300
хит продаж брус камерной сушки
Тип: с маленькой террасой
Общая площадь: 65.92
1460800
от 1391300

Заказать или задать вопрос




Дома из бруса в Костроме
Отзывы из Яндекс Карт
4.9
86 отзывов
Дополнительные услуги 88%
2 154 оценок
Комплектации 89%
1 535 оценок
Планировки 90%
2 484 оценок
Проекты 93%
2 231 оценок
С
Агап Ж.03/24/2025 г.
Профилированный брус оказался отличным выбором, стены ровные и красивые, не требуют дополнительной отделки, что сэкономило нам время и деньги.
Отзывы из Google Карт
4.8
52 отзывов
Дополнительные услуги 88%
2 154 оценок
Комплектации 89%
1 535 оценок
Планировки 90%
2 484 оценок
Проекты 93%
2 231 оценок
С
Леся Золотова04/14/2025 г.
Мне построили чудесную баню из бруса! Хочется отметить не только скорость и качество работы, но и эстетический вид. Брус красивый, с ровной поверхностью, не требующий дополнительной отделки. В бане приятно находиться даже без пара. Спасибо за отличный результат и за внимание к деталям.
Отзывы из 2гис
4.9
32 отзывов
Дополнительные услуги 88%
2 154 оценок
Комплектации 89%
1 535 оценок
Планировки 90%
2 484 оценок
Проекты 93%
2 231 оценок
С
Ватслав Ильюхин07/22/2025 г.
Отличная компания для тех, кто ценит своё время и хочет получить результат без лишних хлопот. Менеджер взял на себя решение всех организационных вопросов, от меня требовалось только принимать этапы работы. Строительство шло строго по графику, без задержек. Я был приятно удивлён такой слаженной работе всего коллектива.

Заказать или задать вопрос

Заказать звонок

Напишите нам
Здравствуйте! Отправьте нам вопрос или заявку в WhatsApp