Дома под ключ в Костроме
Отзывы из Яндекс Карт
4.9
93 отзывов
Дополнительные услуги 88%
2 154 оценок
Комплектации 89%
1 535 оценок
Планировки 90%
2 484 оценок
Проекты 93%
2 231 оценок
С
Эвелина03/05/2026 г.
В проекте была заложена веранда, но в последний момент мы решили сделать ее закрытой. Внесли изменения в договор, доплатили, и не жалеем — используем ее даже в непогоду.
С
Галина Шмелёва02/01/2026 г.
С баней вышла небольшая заминка со сроками, начали на неделю позже обещанного из-за поставки бруса. Зато сделали все качественно, без щелей. Паримся теперь каждые выходные.
С
Вадим Гуляев01/20/2025 г.
Сомневался между каркасным домом и брусовым, но консультанты «Брус дома» подробно разъяснили плюсы и минусы каждого варианта для моего случая, в итоге выбрал профилированный брус и ни разу не пожалел, дом получился очень теплым и по-настоящему уютным.
Отзывы из Google Карт
4.8
56 отзывов
Дополнительные услуги 88%
2 154 оценок
Комплектации 89%
1 535 оценок
Планировки 90%
2 484 оценок
Проекты 93%
2 231 оценок
С
Петр Сомов05/11/2026 г.
Короче, поставили они мне летнюю баню 5х5 без утепления для шашлыков. Попросил сделать пол с уклоном для слива — сделали, вода стекает отлично. Только дверь в парной закрывается туго, косяк повело от влажности, сам подстрогал.
С
Алан Кравцов04/24/2026 г.
Заказал дом 10х14 для большой семьи, с двумя санузлами и котельной. Бригада попалась толковая, ребята из соседней области. Единственное - мусор после себя оставили, пришлось самому двор убирать.
С
Степан Емельянов05/28/2025 г.
Очень впечатлило качество профилированного бруса, который нам предложила компания — ровный, красивый, без единой трещинки. Сборка каркаса прошла словно по волшебству, все пазы идеально сошлись, никаких щелей и зазоров. Теперь у нас есть настоящая семейная крепость, спасибо огромное!
Отзывы из 2гис
4.9
32 отзывов
Дополнительные услуги 88%
2 154 оценок
Комплектации 89%
1 535 оценок
Планировки 90%
2 484 оценок
Проекты 93%
2 231 оценок
С
Аза Сазонова01/21/2026 г.
Были опасения насчёт каркасной технологии, думали, будет холодно и ненадёжно. Но уговорили нас на экскурсию на готовый объект, мы пообщались с хозяевами, те похвалили. Теперь и мы свой дом хвалим.
С
Аида Лобанова08/17/2025 г.
Выражаю огромную благодарность за мой прекрасный дом, который строили как для себя. Каждый гость отмечает качество работы и красоту деревянных конструкций. Я счастлива!


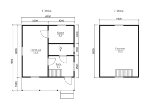
Проект №18 Дом с террасой 7,5х6

каркас из строганой доски
Создайте свой план для этого проекта
и отправьте его нам на расчет в один клик.
Каркасный дом (150 мм) 6х7,5 Толщина утепления 150 мм 1761300 Заказать
Каркасный дом (200 мм) 6х7,5 Толщина утепления 200 мм 1921300 Заказать

Пользуйтесь нашим планировщиком для того, чтобы адаптировать под себя уже готовые проекты и получить свою персональную планировку.

При помощи планировщика вы можете создать чертежи, схемы, эскизы, планы уникального дома с мансардой, эркером, с нужным количеством комнат. Вы получите проект с планировкой, который полностью отвечает вашим требованиям.

При заказе строительства дома можно выбрать определенный тип крыши: четырехскатная, двускатная и вальмовая. Двухскатная крыша - наиболее популярна у малометражных домов.

Самые востребованные на сегодняшний день размеры домов и коттеджей: мини - до 50 кв. М (в большинстве случаев, 1 этажные); компактные - от 70 до 100 квадратных метров (обычно 2х этажные); большие - начиная от 150 кв. М и больше.

Можем предложить дуплексы - каркасные дома с 2-мя входами на две семьи. Такие дома предполагаются для двух хозяев, они поделены на две половины, каждая половина с отдельным входом.


Наши работы

Перейти в галерею


Комплектация

Площадь застройки: 45 м2
Длина: 7.5 м
Ширина: 6 м
Общая площадь: 58.82 м2
Исполнение Под ключ (с отделкой)
Фундамент Свайно-винтовой или ж/б сваи (рассчитываются отдельно).
Гидроизоляция фундамента Рубероид в два слоя.
Основание (обвязка) Из обрезного бруса 150х150 мм. 150х200 мм. согласно выбранной толщине утепления. Торцевая доска строганая 45х145/45х195+/-5 мм. согласно выбранной толщине утепления. Обработка антисептиком.
Цокольное перекрытие Строганая доска камерной сушки 45х145/45х195+/-5 мм. с шагом 590 мм. Обработка антисептиком.
Пол черновой Обрезная доска камерной сушки 20х100 мм.
Влаго-ветрозащита чернового пола Мембрана Ондутис А100.
Внешние стены Стойки каркаса из строганой доски камерной сушки 45х145/45х195+/-5 мм. с шагом 590 мм. Верхняя двойная и нижняя обвязки из строганой доски камерной сушки 45х145/45х195+/-5 мм. Разгрузочный ригель из строганой доски 45х145+/-5 мм. Укосины из строганой доски 20х95 мм.
Перегородки Стойки каркаса из строганой доски камерной сушки 45х95+/-5 мм. с шагом 590 мм. Верхняя двойная и нижняя обвязки из строганой доски 45х95+/-5 мм. Разгрузочный ригель из строганой доски камерной сушки 45х145+/-5 мм. Укосины из строганой доски камерной сушки 20х95 мм.
Сборка каркаса На гвозди.
Высота от пола до потолка Дом одноэтажный: 2,5 м. Дом с мансардой: 1-ый этаж- 2,5 м.
2-ой этаж (мансарда)- 2,3 м.
Дом в полтора и два этажа:
1-ый этаж 2,5 м.
2-ой этаж 2,4 м. в полутораэтажном доме
2,5 м. в двухэтажном доме.
Внешняя отделка стен Имитация бруса камерной сушки, сорт АВ, толщиной 17 мм. Монтаж через строганый брусок камерной сушки 45х45+/-5 мм. (вентилируемый фасад). Влаго-ветрозащитная мембрана- Ондутис А100.
Внутренняя отделка стен, перегородок Евровагонка камерной сушки, сорт АВ, толщиной 12,5 мм. по строганой рейке 20х40+/-5 мм. либо ГКЛ 12,5 мм.
Отделка потолка Евровагонка камерной сушки, сорт АВ толщиной, 12,5 мм. по строганой рейке 20х40+/-5 мм. либо ГКЛ 12,5 мм.
Пол чистовой Шпунтованная доска камерной сушки толщиной 35-36 мм. сорт АВ. по строганой рейке 20х40+/-5 мм. либо шпунтованная ДСП 16 мм. по разряженной обрешётке из строганой доски камерной сушки 20х95+/-5 мм.
Утепление (пол, потолок) Минеральная вата Knauf 150/200 мм. согласно выбранной толщине утепления.
Утепление стен Плитный утеплитель Rockwool, толщиной 150/200 мм. согласно выбранной толщине утепления.
Звукоизоляция перегородок Плитный утеплитель Rockwool, толщиной 100 мм.
Пароизоляция (стены, перегородки, пол, потолок) Плёнка Ондутис R70. Дополнительная герметизация нахлёстов/примыканий пароизоляционной плёнки клейкой лентой Delta.
Окна Двухкамерные стеклопакеты ПВХ белого цвета, профиль 60 мм. В комплекте: отливы, подоконники, москитные сетки.
Двери Входная- металлическая, утеплённая (Россия). Межкомнатные- филёнчатые.
Наличники на окна и двери Наличник деревянный, строганый, камерной сушки 70-90 мм. с двух сторон.
Лестница (при наличии второго этажа) Деревянная, одно или двухмаршевая. Перила- заводские резные, балясины- заводские точеные, устанавливаются стартовые точёные столбы. Ступени 40х200 мм. Тетива лестницы- 90х140 мм.
Крыша Двускатная, ломаная или вальмовая в соответствии с проектом.
Стропильная система Выполнена из строганой доски камерной сушки 45х145/45х195+/-5 мм. Шаг установки стропил 590 мм.
Обрешётка Выполняется из строганой доски камерной сушки толщиной 20х95+/-5 мм. Шаг крепления обрешетки 350 мм. Контробрешётка выполняется из строганого бруска камерной сушки 45х45+/-5 мм. Крепится по стропилам (вентиляционный зазор).
Подкровельная мембрана Ондутис А100
Кровельное покрытие (на выбор) Металлочерепица 0,45 мм. Цвет на выбор.
Фронтоны (при наличии) Каркас из строганой доски камерной сушки 45х145/45х195+/-5 мм. Обшиваются имитацией бруса камерной сушки, сорт АВ, толщиной 17 мм. Монтаж через строганый брусок камерной сушки 45х45+/-5 мм. (вентилируемый фасад). Влаго-ветрозащитная мембрана- Ондутис А100. Монтаж вентиляционных решёток.
Свесы крыши Ширина 400 мм. Подшиваются вагонкой камерной сушки, сорт АВ.
Терраса/балкон (при наличии) Устанавливаются опорные столбы из строганного бруса камерной сушки 140х140 мм.
Отделка потолка террасы/балкона Евровагонка камерной сушки толщиной 12,5 мм. сорт АВ.
Пол террасы/балкона Шпунтованная доска камерной сушки толщиной 35-36 мм. сорт АВ.
Ограждение террасы/балкона Перила- строганая доска. Балясины- точеные, фигурные. Либо ограждение в скандинавском стиле. Устанавливаются ступени у входа.
Допуск на геометрические параметры Составляет +/- 50 мм по длине с каждой стороны.
Допускается стыковка имитации бруса, вагонки и половой доски По всему периметру стен дома (если ширина и длина дома более 6,0 метров). Вагонки и доски пола в каждой отдельной комнате.
Допуски по имитации бруса, вагонке, доске +/- 5 мм.
В стоимость включена Доставка комплекта материала в радиусе 500 км. от г. Пестова Новгородской области и сборка дома на вашем участке.
Гарантия 5 лет.
Бытовка строительная 2,0х3,0 м. каркасно-щитовая. Стоимость 23000 руб. Остаётся на участке Заказчика.
Туалет 1,0х1,0 м. каркасно-щитовой. Стоимость 12000 руб. Остаётся на участке Заказчика.
Генератор Стоимость аренды на весь срок строительства 15000 руб. ГСМ за счёт Заказчика.

Сооружение каркасных домов осуществляется в 2-х вариантах: полностью под ключ и под усадку, когда сруб отстаивается на протяжении некоторого времени.

Зимой специалисты советуют строить дома в морозную погоду, чтобы каркас не промок, в летнюю пору - не под дождем.

Подходящими для сада или дачи являются бюджетные домики на винтовых сваях, в нашем онлайн-каталоге находятся одноэтажные и полуторатажные варианты домов.

Для ПМЖ (постоянного проживания), готовы предложить очень теплые двухэтажные и одноэтажные дома на плитном и ленточном фундаменте.

Мы предлагаем два вида утепления: 150 мм и 200 мм. Каркасные дома с утеплителем 150 миллиметров получаются дешевле, но не такими теплыми.

Дополнительные услуги


Одним из популярных решений загородного дома является проект 18 каркасного полутораэтажного дома с маленькой террасой (6х7,5 м.), общей площадью 58.82 кв.м.. Оптимальный размер предоставляет комфортные условия для семейного отдыха в окружении природы.

Просторная гостиная и уютная кухня имеют конструктивную планировку и открыты для естественного освещения благодаря двойным зимним окнам. Отличительной особенностью проекта является маленькой террасой. Дом надежно укрыт от непогоды двускатной, покрытой ондулином заранее выбранной расцветки.

Сооружение имеет высокие показатели в таких характеристиках:

По желанию заказчика компания «Дача из бруса» охотно внесет изменения в первоначальный проект для удовлетворения личных эстетических предпочтений владельца, придавая строению неповторимость и индивидуальность. Закажите строительство каркасного дома в Костроме.


Популярные проекты


Двухэтажные дома из бруса Дома из бруса более 100 кв.м. Каркасные дома
хит продаж
Тип:
Общая площадь: 2
2720800
от 2591300
хит продаж
Тип: с балконом, с маленькой террасой
Общая площадь: 2
3613300
от 3441300
хит продаж
Тип:
Общая площадь: 2
1681300
от 1601300
Дома из бруса

Заказать или задать вопрос



Заказать или задать вопрос

Заказать звонок