Дома под ключ в Костроме
Отзывы из Яндекс Карт
4.9
118 отзывов
Дополнительные услуги 88%
2 154 оценок
Комплектации 89%
1 535 оценок
Планировки 90%
2 484 оценок
Проекты 93%
2 231 оценок
С
Радомир Ф.05/01/2026 г.
Долго выбирал между вами и другой конторой. Вас убедило наличие своего производства и то, что можно посмотреть готовые объекты. Построили дом 9х9 под ключ. Живем первый сезон, пока нареканий нет, хотя соседи пугали, что в каркасниках холодно.
С
Ульяна Т.04/20/2026 г.
Честно сказать, я не очень разбираюсь в стройке, но прораб Владимир всё терпеливо объяснял и показывал, даже когда я приезжала на объект с кучей глупых вопросов — за это огромное человеческое спасибо.
С
Ева Зиновьева02/04/2026 г.
Купили участок неровный, думала не построим ничего, приехал замерщик из «БрусДома», посоветовал свайный фундамент с перепадом, дом 9х13 с цоколем стоит как влитой, даже не скрипит.
С
Стефания Ш.06/19/2025 г.
Очень переживала, как пройдет все этапы строительства, но компания "Брус дома" оказалась очень надежной. Все было сделано строго по договору и проекту, без скрытых доплат и неприятных сюрпризов. Теперь у нас прекрасный загородный дом, в котором так приятно собираться всей семьей.
Отзывы из Google Карт
4.8
71 отзывов
Дополнительные услуги 88%
2 154 оценок
Комплектации 89%
1 535 оценок
Планировки 90%
2 484 оценок
Проекты 93%
2 231 оценок
С
Астра З.01/04/2026 г.
Слушайте, строительство дома 8х14 с эркером и мансардой — это стресс даже с хорошей компанией. Но БрусДома помогли с выбором материалов, даже съездили со мной на базу, чтобы я поняла разницу в брусе.
С
Эдуард Лукьянов01/24/2025 г.
Хочу отметить профессионализм прораба Дмитрия и его команды. Строили мне дом из бруса, и я был приятно удивлён их отношением к делу. Каждый этап согласовывали, советовали оптимальные технические решения, а по срокам уложились точно в оговорённую дату. Дом получился тёплым, фундамент сделан на совесть, кровля смонтирована безупречно. Соседи уже спрашивают, кто строил — буду рекомендовать только "Брус дома".
Отзывы из 2гис
4.9
32 отзывов
Дополнительные услуги 88%
2 154 оценок
Комплектации 89%
1 535 оценок
Планировки 90%
2 484 оценок
Проекты 93%
2 231 оценок
С
Лика03/12/2026 г.
Первые полгода постоянно что-то щёлкало и потрескивало в доме. Я пугалась, звонила. Меня успокоили, сказали, что это нормальный процесс для дерева. Сейчас действительно всё устоялось, тишина.
С
Клим05/11/2025 г.
Брус камерной сушки позволил избежать проблем с усадкой и деформацией.


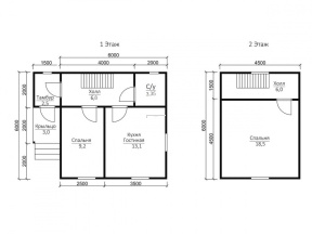
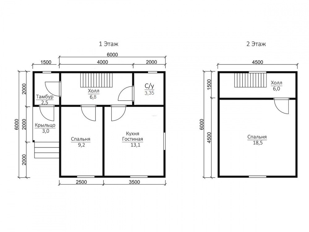
Проект №17 Дом с мансардой 6х7,5

брус камерной сушки
Создайте свой план для этого проекта
и отправьте его нам на расчет в один клик.
Под ключ (с отделкой) 6х7,5 Профилированный 140х140 мм 1671300 Заказать
Под ключ (с отделкой) 6х7,5 Профилированный 190х140 мм 1841300 Заказать
Под усадку (без отделки) 6х7,5 Cруб дома 140х140 мм 1141300 Заказать
Под усадку (без отделки) 6х7,5 Cруб дома 190х140 мм 1261300 Заказать


Комплектация

Площадь застройки: 45 м2
Длина: 6 м
Ширина: 7.5 м
Общая площадь: 60.5 м2
Под ключ (с отделкой) Под усадку (без отделки)
Фундамент Свайно-винтовой или ж/б сваи (рассчитываются отдельно).
Гидроизоляция фундамента Рубероид в два слоя.
Основание (обвязка) Из обрезного бруса (100х150 мм. 150х150 мм. 150х200 мм. согласно выбранному сечению бруса). Обработка антисептиком.
Количество рядов основания 2 2
Цокольное перекрытие Обрезной брус камерной сушки 100х150/50х200 мм. с шагом 600 мм. Обработка антисептиком. Обрезной брус естественной влажности 100х150/50х200 мм. с шагом 600 мм. Обработка антисептиком.
Пол черновой Обрезная доска камерной сушки 20х100 мм. Обрезная доска естественной влажности 20х100 мм.
Внешние стены Профилированный брус камерной сушки, сечением 90х140/140х140/190х140 мм. по выбранной комплектации. Два вида профиля: 
1. С двух сторон, прямой со снятой фаской. 2. Снаружи под «блок- хаус», внутри прямой.
Высота сруба: Сруб одноэтажный- 18 венцов
Сруб с мансардой- 18 венцов
Сруб в 1,5 этажа- 18 венцов, далее каркас с внешней отделкой имитацией бруса.
Сруб в 2 этажа- 37 венцов
Профилированный брус естественной влажности, сечением 90х140/140х140/190х140 мм. по выбранной комплектации. Два вида профиля: 
1. С двух сторон, прямой со снятой фаской. 2. Снаружи под «блок- хаус», внутри прямой.
Высота сруба: Сруб одноэтажный- 18 венцов
Сруб с мансардой- 18 венцов
Сруб в 1,5 этажа- 18 венцов, далее каркас с внешней отделкой имитацией бруса.
Сруб в 2 этажа- 37 венцов
Межвенцовый утеплитель Джут (льноджутовое полотно). Джут (льноджутовое полотно).
Перегородки 1-го этажа Профилированный брус камерной сушки, сечением 90х140 мм. Профилированный брус естественной влажности, сечением 90х140 мм.
Перегородки 2-го этажа Каркасные: доска камерной сушки 40х100 мм, обшитые евровагонкой хвойных пород, камерной сушки, толщиной 12,5 мм. сорт «АВ» (дома с мансардой и в 1,5 этажа). Брусовые: профилированный брус камерной сушки, сечением 90х140 мм. (дома двухэтажные). Каркасные: доска естественной влажности 40х100 мм. (дома с мансардой и в 1,5 этажа). Брусовые: профилированный брус естественной влажности, сечением 90х140 мм. (дома двухэтажные).
Сборка сруба Берёзовый нагель. Берёзовый нагель.
Соединение углов сруба «Тёплый угол» (коренной шип). «Тёплый угол» (коренной шип).
Высота от пола до потолка Сруб одноэтажный: 2,4 м. (18 венцов) Сруб с мансардой: 1-ый этаж- 2,4 м. (18 венцов)
2-ой этаж (мансарда)- 2,3 м.
Сруб в полтора и два этажа:
1-ый этаж 2,4 м ±4 см. (18 венцов)
2-ой этаж 2,4 м ±4 см. каркасные аттиковые стены (боковые) высотой 1,5 м. в полутораэтажном доме
2,4 м ±4 см (поднят брусом на 18 венцов) в двухэтажном доме.
Сруб одноэтажный: 2,5 м. (18 венцов) Сруб с мансардой: 1-ый этаж- 2,5 м. (18 венцов)
2-ой этаж (мансарда)- 2,4 м.
Сруб в полтора и два этажа:
1-ый этаж 2,5 м ±4 см. (18 венцов)
2-ой этаж 2,5 м ±4 см. каркасные аттиковые стены (боковые) высотой 1,5 м. в полутораэтажном доме
2,5 м ±4 см (поднят брусом на 18 венцов) в двухэтажном доме.
Утепление (пол, потолок, мансарда) Минеральная вата Knauf 150 мм. Отсутствует.
Пароизоляция (пол, потолок, мансарда) Ондутис R70. Отсутствует.
Пол чистовой Шпунтованная доска камерной сушки толщиной 36 мм. сорт АВ. по рейке 20х40 мм. либо шпунтованная ДСП 16 мм. по разряженной обрешётке из обрезной доски камерной сушки 20х100 мм. Отсутствует.
Потолки Евровагонка камерной сушки толщиной 12,5 мм. сорт АВ. Отсутствует.
Окна Деревянные, двойного остекления. Отсутствуют.
Двери Входная- металлическая, утеплённая (Россия). Межкомнатные- филёнчатые. Отсутствуют.
Наличники на окна и двери Наличник деревянный, строганый, камерной сушки 70-90 мм. Отсутствует.
Шиповка оконных и дверных проёмов (ройки) Да. Отсутствует.
Лестница (при наличии второго этажа) Деревянная, одно или двухмаршевая. Перила- заводские резные, балясины- заводские точеные, устанавливаются стартовые точёные столбы. Ступени 40х200 мм. Тетива лестницы- 90х140 мм. Отсутствует.
Крыша Двускатная, ломаная или вальмовая в соответствии с проектом. Двускатная, ломаная или вальмовая в соответствии с проектом.
Стропильная система Выполнена из обрезной доски камерной сушки 40х150 мм. Шаг установки стропильных ног 600 мм. Выполнена из обрезной доски естественной влажности 40х150 мм. Шаг установки стропильных ног 600 мм.
Обрешётка Выполняется из обрезной доски камерной сушки толщиной 20-22 мм. Шаг крепления обрешетки 300 мм. Контробрешётка выполняется из бруска камерной сушки 40х50 мм. Крепится по стропильным ногам (вентиляционный зазор). Выполняется из обрезной доски естественной влажности толщиной 20-22 мм. Шаг крепления обрешетки 300 мм. Контробрешётка выполняется из бруска естественной влажности 40х50 мм. Крепится по стропильным ногам (вентиляционный зазор).
Подкровельная мембрана Ондутис А100 Ондутис А100
Кровельное покрытие (на выбор) Ондулин, Черепица Ондулин. Ондулин, Черепица Ондулин.
Фронтоны (при наличии) Каркас из обрезной доски камерной сушки 40х150 мм. Обшиваются вагонкой камерной сушки толщиной 16 мм. сорт АВ по контррейке 20х40 мм. (вентиляционный зазор). Влаго-ветрозащита Ондутис А100. Монтаж вентиляционных решёток. Каркас из обрезной доски естественной влажности 40х150 мм. Обшиваются вагонкой камерной сушки толщиной 16 мм. сорт АВ по контррейке 20х40 мм. (вентиляционный зазор). Влаго-ветрозащита Ондутис А100. Монтаж вентиляционных решёток.
Свесы крыши Ширина 400 мм. Подшиваются вагонкой камерной сушки, сорт АВ. Ширина 400 мм. Подшиваются вагонкой камерной сушки, сорт АВ.
Терраса/балкон (при наличии) Устанавливаются опорные столбы из строганного бруса камерной сушки 140х140 мм. с компенсационными болтами под усадку. Устанавливаются опорные столбы из строганного бруса естественной влажности 140х140 мм. с компенсационными болтами под усадку.
Отделка потолка террасы/балкона Евровагонка камерной сушки толщиной 12,5 мм. сорт АВ. Отсутствует.
Пол террасы/балкона Шпунтованная доска камерной сушки толщиной 36 мм. сорт АВ. Отсутствует.
Ограждение террасы/балкона Перила- строганая доска. Балясины- точеные, фигурные. Либо ограждение в скандинавском стиле. Устанавливаются ступени у входа. Отсутствует.
Допуск на геометрические параметры сруба Составляет +/- 50 мм по длине с каждой стороны. Составляет +/- 50 мм по длине с каждой стороны.
Допускается стыковка бруса, вагонки и половой доски По всему периметру стен дома (если ширина и длина дома более 6,0 метров). Вагонки и доски пола в каждой отдельной комнате. По всему периметру стен дома (если ширина и длина дома более 6,0 метров).
Допуски по брусу, доске +/- 5 мм. +/- 5 мм.
В стоимость включена Доставка комплекта материала в радиусе 500 км. от г. Пестова Новгородской области и сборка дома на вашем участке. Доставка комплекта материала в радиусе 500 км. от г. Пестова Новгородской области и сборка дома на вашем участке.
Гарантия 5 лет. 2 года.
Бытовка строительная 2,0х3,0 м. каркасно-щитовая. Стоимость 23000 руб. Остаётся на участке Заказчика. Стоимость 23000 руб. Остаётся на участке Заказчика.
Туалет 1,0х1,0 м. каркасно-щитовой. Стоимость 12000 руб. Остаётся на участке Заказчика. Стоимость 12000 руб. Остаётся на участке Заказчика.
Генератор Стоимость аренды на весь срок строительства 10000 руб. ГСМ за счёт Заказчика. Стоимость аренды на весь срок строительства 10000 руб. ГСМ за счёт Заказчика.

Сооружение дома может осуществляться в нескольких вариантах: полностью под ключ и под усадку, когда сруб отстаивается определенное время.

Зимой эксперты рекомендуют строить дом из зимнего леса, в летнюю пору - из дерева камерной сушки.

Максимально подходящими для дачи или сада являются бюджетные домики на винтовых сваях, на нашем сайте находятся одноэтажные и полуторатажные дома.

Для постоянного проживания, рекомендуем надежные и теплые одноэтажные и двухэтажные дома на плитных и ленточных фундаментах.

Мы можем предложить несколько размеров профбруса: 190х140 мм и 140х140 мм. Дома из вертикального бруса строим с использованием бруса 140х190 мм.

Дополнительные услуги


Проект полутораэтажного дома из бруса с – оптимальный вариант для загородного проживания. Сдержанные архитектурные элементы и четкие контурные линии в проекте 17 расширяют функциональность дома и придают постройке респектабельный вид.

Во внутренней планировке присутствуют все помещения, удовлетворяющие запросы среднестатистической семьи. Равномерное расположение зимних окон с двойным остеклением обеспечивает проникновение дневного света и нормализует воздухообмен в помещениях.

Ансамбль дома завершается двускатной крышей. Покрытие выполнено из ондулина одного из трех цветов на усмотрение заказчика: зеленый, красный или коричневый.

Продуманная планировка внутреннего пространства, просторность и естественная освещенность комнат, натуральное дерево – факторы эксплуатационной надежности и максимального комфорта. Общая площадь дома составляет 60.5 кв.м., а размер – 6х7,5 м..

Закажите строительство дома в Костроме по проекту, разработанному компанией «Дача из бруса». 


Популярные проекты

хит продаж брус камерной сушки
Тип:
Общая площадь: 482
1156300
от 1101300
хит продаж брус камерной сушки
Тип:
Общая площадь: 48.142
977800
от 931300
хит продаж брус камерной сушки
Тип: с балконом, с маленькой террасой
Общая площадь: 107.32
2500300
от 2381300

Заказать или задать вопрос



Заказать или задать вопрос

Заказать звонок